河南暖极人石墨烯科技有限公司主营:家用采暖设备,电热膜,电地暖,电采暖,电供暖,石墨烯地暖,石墨烯电地暖,石墨烯墙暖,石墨电地暖,智能电地暖,墙暖,电暖器,电暖画等

营业时间
周一至周六 8:00-18:00

联系电话
18137195000

工厂地址
河南省郑州市

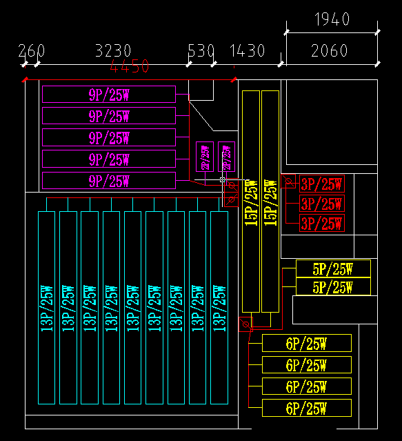
樟树市石墨烯电地暖55.87平米瑜伽馆暖极人石墨烯电热膜铺装案例;

微信图片_2025-10-30_203829_122.png

暖极人石墨烯电热膜品牌厂家价格电话:18137195000;樟树市石墨烯墙暖画批发,樟树市石墨烯电暖器批发

樟树市石墨烯电地暖55.87平米瑜伽馆暖极人石墨烯电热膜铺装案例;2925W,1600W,225W,1225W;宜春石墨烯电地暖 铜鼓县石墨烯电地暖 丰城市石墨烯电地暖 樟树市石墨烯电地暖 高安市石墨烯电地暖 万载县石墨烯电地暖 上高县石墨烯电地暖 奉新县石墨烯电地暖 宜丰县石墨烯电地暖 靖安县石墨烯电地暖

首页
电话
短信
联系